CEDAR
Construction de deux logements passifs et accessibles à La Louvière.
Détails du projet
- Année : 2020
- Lieu : La Louvière
Type de projet : Construction Neuve
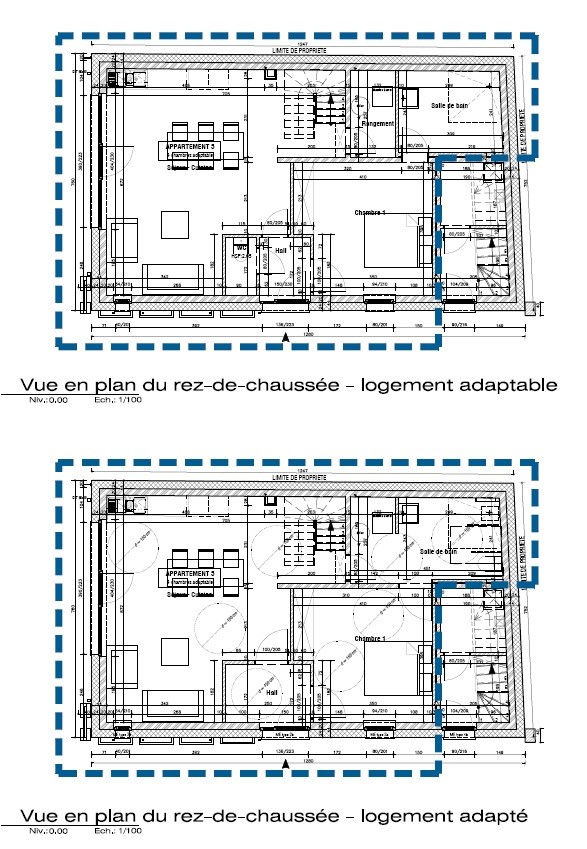
Logement 1, rue du travail à 7100 La Louvière – Attestation A
Duplex passif 4 chambres, adaptable. Le duplex en version adaptée comportera une unité de vie au rez-de-chaussée comprenant 1 chambre 2 personnes, sanitaires (salle de douche et toilette), salon et cuisine.
Logement 2, rue du travail à 7100 La Louvière – Attestation A
Duplex passif 4 chambres, adaptable. Le duplex en version adaptée comportera une unité de vie au rez-de-chaussée comprenant 1 chambre 2 personnes, sanitaires (salle de douche et toilette), salon et cuisine.
Remarques : En cas d’utilisation d’un lit double, une aire de rotation de 150 cm de diamètre n’est pas présente directement devant la fenêtre de la pièce. Une manœuvre sera nécessaire.
Plus d’info :
Maître de l’ouvrage : Centr’Habitat SCRL
Auteur de projet : S
Bureau d’étude Stabilité :
Bureau d’architecte : THEMA SPRL
Bureau d’études accessibilité :
Promoteur-Constructeur :





